Konzept
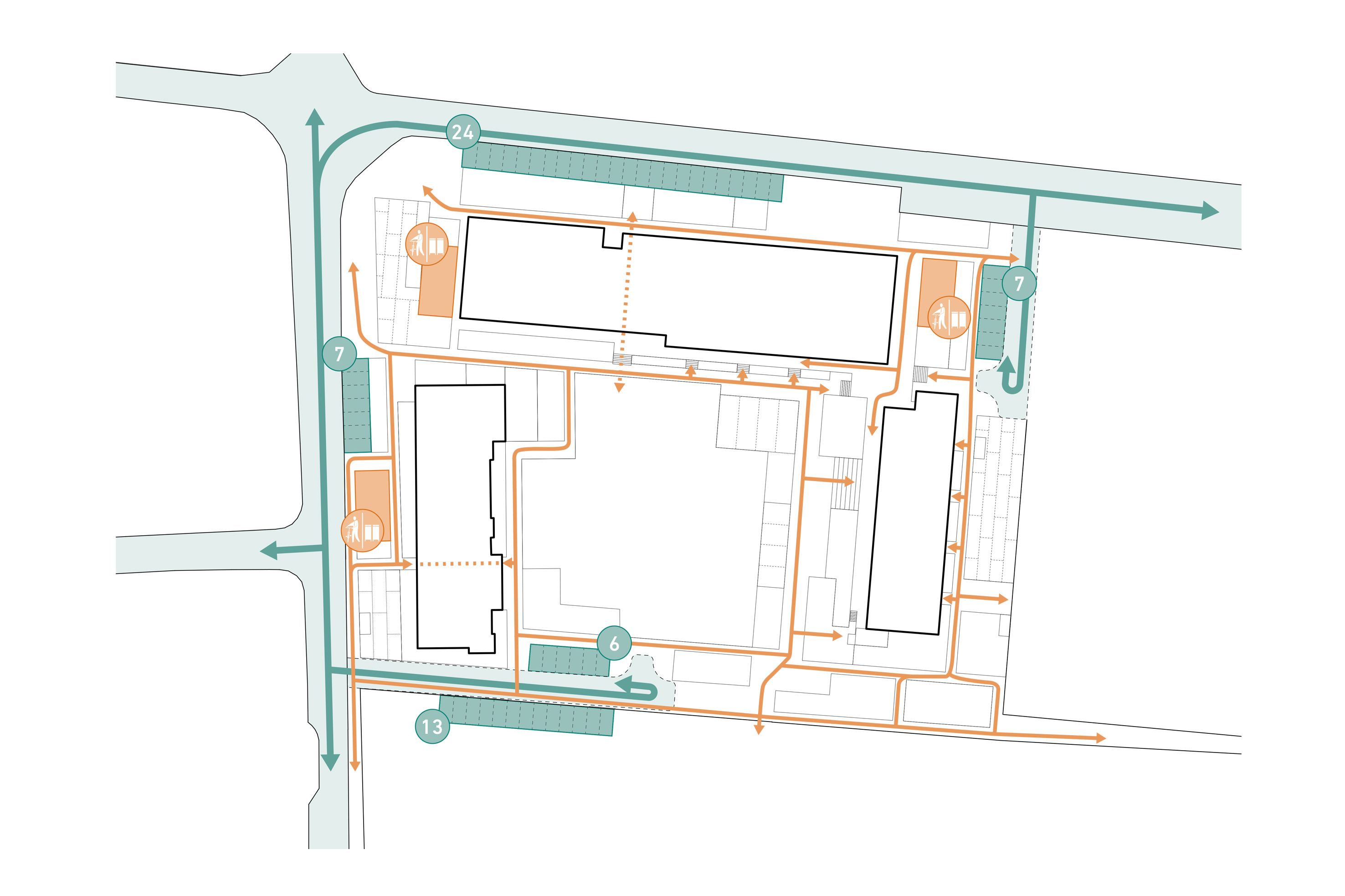
Zur Aktivierung und Verbesserung der Freiraumnutzung werden „Freiraum-Tools“ als multifunktionale Möbel vorgeschlagen. Als wiedererkennbare Elemente versorgen sie den Hof mit einer ortstypischen Gestaltung, die auch für andere Höfe individuell anwendbar sind. Das Ziel ist eine Rückeroberung der Freiräume für die BewohnerInnen des Ossietzky-Hofs. Dank der Anordnung der Stellplätze in den Randzonen lässt sich eine großzügige, freie Mitte mit einem aktiven Rahmen ausbilden. Zusätzlich besteht das Potential, die öffentlichen Freiräume durch eine weitere Reduktion der Straßenflächen zu nutzbaren Räumen in mehreren Schritten zu transformieren. Eine robuste Freiraumstruktur baut ein großes, gemeinsames Feld auf, welches in der Randzone mit vielfältigen Aktionsräumen für alle BewohnerInnen und den angrenzenden Gebäudenutzungen interagiert. Die Kombination aus Freiraum-Tools mit räumlich lesbaren Freiraumfeldern erzeugt wertvolle Räume für Interaktion und Gemeinschaft. Es werden Räume geschaffen, die sowohl zum Austausch mit dem Nachbarn/der Nachbarin einladen, als auch Rückzugsbereiche anbieten. Zur besseren Verzahnung des Ossietzky-Hofes im Stadtgefüge werden die Ecken durch gemeinschaftliche Nutzungen, wie Gemeinschaftsgärten, aktiviert. Auf diese Weise strahlt das Projekt ins umliegende Quartier aus.
Design

Fakten
TYP: Wohnbau Außenanlagen
Lage: Nordhausen, Deutschland
Fläche: 1.400 m2
Planung: 2018
STATUS: 2. Preis Wettbewerb
Partner: einszueins architektur